Casa a la venta en 9931 W Atlantic Blvd, Coral Springs FL 33071. MLS #A11429246
Detalles de la propiedad
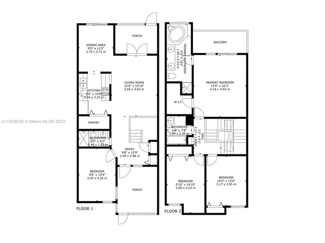
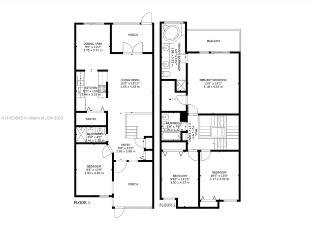
Encanto 4 dormitorios y 3 baños casa de campo, ubicado en el centro de Maplewood en Coral Springs. Acceso a la propiedad aunque un porche frontal con pantalla con un agradable área de estar. Al entrar, usted apreciará el espacio vital es el centro de la casa, conectado al mismo tiempo a la cocina, el comedor, y el porche trasero con pantalla, es perfecto para entretener a sus invitados!
Características
Interior
Dormitorios y Baños
- Dormitorios: 4
- Baños: 3
- Baños completos: 3
Pisos
- Pisos: Alfombra, Suelo cerámico, Azulejos
Calefacción
- Características de calefacción: Central, Eléctrico
Enfriamiento
- Tiene enfriamiento: Sí
- Características de enfriamiento: Aire central, Eléctrico
Electrodomésticos
- Electrodomésticos incluidos: N/A
Otras características interiores
- Tour virtual: Enlace
Propiedad
Propiedad
- Características de la piscina: N/A
- Características exteriores: Balcón con mosquitera
- Detalles del patio y el porche: Screened Porch
- Descripción de la vista: Vista al jardín
Otra información de la propiedad
- Número de parcela: 484128AA0160
- Adjunto a otra estructura: Sí
Construcción
Tipo y estilo
- Tipo de hogar: Townhouse Condo
Información del material
- Construcción: Construcción de bloques de concreto
Condición
- Año de construcción: 1983
Comunidad y vecindario
Ubicación
- Región: Coral Springs
HOA y financiamiento
HOA
- Tiene HOA: No
- Cuota de HOA: 615
- Servicios incluidos: Sala comunitaria, Iluminación exterior, Piscina, Spa/Tina de hidromasaje
Otra información financiera
- Compensación de la agencia del comprador: N/A
Propiedades cercanas
1.000.000 US$
4 habitaciones, 3.5 baños, área de 3931 sqft
Casa tipo Single Family en 102nd Avenue, Coral Springs FL
Cod. Postal 33071
1.500.000 US$
4 habitaciones, 3.5 baños,
Casa tipo Single Family en 102nd Way, Coral Springs FL
Cod. Postal 33071
848.000 US$
4 habitaciones, 3 baños, área de 3020 sqft
Casa tipo Single Family en 103 Ter, Coral Springs FL
Cod. Postal 33071

828.000 US$
4 habitaciones, 3 baños, área de 3020 sqft
Casa tipo Single Family en 103 Ter, Coral Springs FL
Cod. Postal 33071.0

840.000 US$
4 habitaciones, 3 baños, área de 3020 sqft
Casa tipo Single Family en 103 Ter, Coral Springs FL
Cod. Postal 33071

850.000 US$
4 habitaciones, 3 baños, área de 3020 sqft
Casa tipo Single Family en 103 Ter, Coral Springs FL
Cod. Postal 33071
La información de IDX se proporciona exclusivamente para uso personal y no comercial, y no se puede utilizar para ningún otro propósito que no sea identificar propiedades potenciales que los consumidores puedan estar interesados en comprar. La información se considera confiable pero no está garantizada. La oferta de compensación del corredor de la lista se realiza solo a los participantes de la MLS donde se archiva la lista.
Invierte en Miami
Déjanos tus datos y recibe asesoría personalizada de cómo invertir en Miami































