Detalles de la propiedad
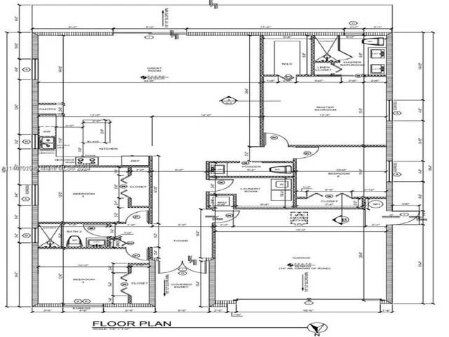
Introducción de otra residencia notable. Actualmente, en la fase de autorización de construcción, esta casa expansiva de 4 dormitorios y 2,5 baños cuenta con un garaje para 2 coches y se extiende aproximadamente 2500 pies cuadrados. Incorpora una serie de características impresionantes como una cocina espaciosa, un dormitorio principal de tamaño generoso, armarios accesibles, una cómoda lavandería y ventanas y puertas de impacto de huracanes. Prepárense para instalarse ya que esta casa estará lista para moverse en aproximadamente 6-8 meses!!! Tenga en cuenta que el constructor se reserva el derecho de ajustar el precio de compra y los materiales debido al aumento de los costos de mano de obra y materiales.
Características
Interior
Dormitorios y Baños
- Dormitorios: 4
- Baños: 3
- Baños completos: 2
Pisos
- Pisos: Otros
Calefacción
- Características de calefacción: Central
Enfriamiento
- Tiene enfriamiento: Sí
- Características de enfriamiento: Aire central
Electrodomésticos
- Electrodomésticos incluidos: N/A
Otras características interiores
- Tour virtual: Enlace
Propiedad
Propiedad
- Características de la piscina: N/A
- Características exteriores: Iluminación
- Descripción de la vista: Jardín
Otra información de la propiedad
- Número de parcela: 494232060470
- Adjunto a otra estructura: No
Construcción
Tipo y estilo
- Tipo de hogar: R30-No Pool/No Water
Información del material
- Construcción: Construcción de bloques de concreto
Condición
- Año de construcción: 2023
Comunidad y vecindario
Ubicación
- Región: Fort Lauderdale
HOA y financiamiento
HOA
- Tiene HOA: No
- Cuota de HOA: N/A
- Servicios incluidos: None
Otra información financiera
- Compensación de la agencia del comprador: N/A
Propiedades relacionadas
560.000 US$
4 habitaciones, 2.5 baños,
Casa tipo Single Family en 10 Ct, Fort Lauderdale FL
Cod. Postal 33311.0
599.000 US$
4 habitaciones, 3 baños, área de 2200 sqft
Casa tipo Townhouse en 30th Terrace, Fort Lauderdale FL
Cod. Postal 33309
599.000 US$
4 habitaciones, 3 baños, área de 2200 sqft
Casa tipo Townhouse en 30th Terrace, Fort Lauderdale FL
Cod. Postal 33309
599.000 US$
4 habitaciones, 3 baños, área de 2200 sqft
Casa tipo Townhouse en 30th Terrace, Fort Lauderdale FL
Cod. Postal 33309
599.000 US$
4 habitaciones, 3 baños, área de 2200 sqft
Casa tipo Townhouse en 30th Terrace, Fort Lauderdale FL
Cod. Postal 33309
599.999 US$
4 habitaciones, 3 baños, área de 2233 sqft
Casa tipo Single Family en 28th Ter, Fort Lauderdale FL
Cod. Postal 33311
Propiedades cercanas
395.000 US$
4 habitaciones, 2 baños, área de 1844 sqft
Casa tipo Single Family en 29th Way, Fort Lauderdale FL
Cod. Postal 33311.0
999.888 US$
4 habitaciones, 3 baños,
Casa tipo Single Family en 10th Ct, Fort Lauderdale FL
Cod. Postal 33311
560.000 US$
4 habitaciones, 2.5 baños,
Casa tipo Single Family en 10 Ct, Fort Lauderdale FL
Cod. Postal 33311.0
385.000 US$
4 habitaciones, 2 baños,
Casa tipo Single Family en 12th Pl, Lauderhill FL
Cod. Postal 33311
450.000 US$
4 habitaciones, 2 baños,
Casa tipo Single Family en 13th St, Lauderhill FL
Cod. Postal 33311
434.900 US$
4 habitaciones, 2 baños, área de 1690 sqft
Casa tipo Single Family en 13th St, Lauderhill FL
Cod. Postal 33311
La información de IDX se proporciona exclusivamente para uso personal y no comercial, y no se puede utilizar para ningún otro propósito que no sea identificar propiedades potenciales que los consumidores puedan estar interesados en comprar. La información se considera confiable pero no está garantizada. La oferta de compensación del corredor de la lista se realiza solo a los participantes de la MLS donde se archiva la lista.
Invierte en Miami
Déjanos tus datos y recibe asesoría personalizada de cómo invertir en Miami






















