Casa a la venta en 6600 SW 129th Ter, Pinecrest FL 33156. MLS #A11524084
Detalles de la propiedad
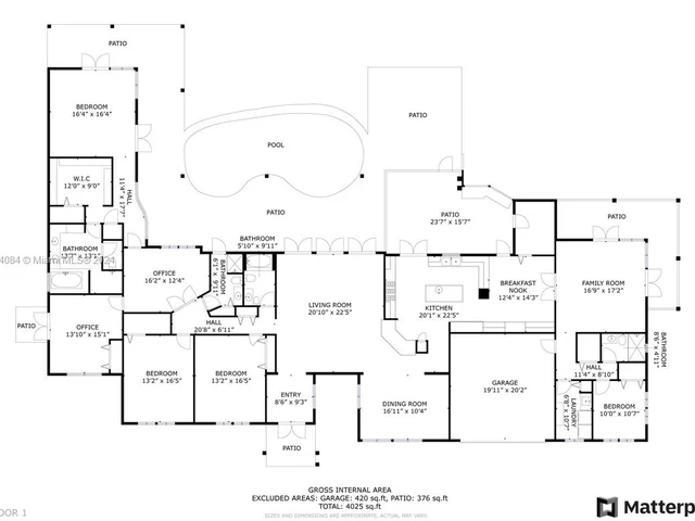
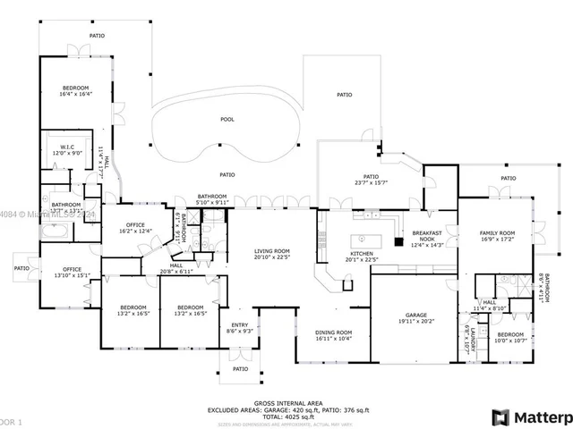
¡Difícil de encontrar Pinecrest Home en un extenso acre! La impresionante propiedad está cercada y cercada creando un oasis privado. Las características al aire libre incluyen: cancha de tenis norte/sur, cocina de verano, piscina con chasis W/ gran cubierta de la piscina, patios expansivos y generador de respaldo de toda la casa. Con 5 dormitorios y 4 baños completos, los espacios habitables expansivos mejoran aún más esta increíble casa unifamiliar. Los extras incluyen: 30 hornos, alarma, armario de agua, calentador de agua, timbre de puerta, gabinetes para bandejas de gas, cobertizo de almacenamiento.
Características
Interior
Dormitorios y Baños
- Dormitorios: 5
- Baños: 4
- Baños completos: 4
Pisos
- Pisos: Otros, Azulejos, Madera
Calefacción
- Características de calefacción: Central
Enfriamiento
- Tiene enfriamiento: Sí
- Características de enfriamiento: Aire central
Electrodomésticos
- Electrodomésticos incluidos: N/A
Otras características interiores
- Tour virtual: Enlace
Propiedad
Propiedad
- Características de la piscina: Enterrada
- Piscina privada: No
- Características exteriores: Barbacoa, Pista(s) de tenis
- Detalles del patio y el porche: Screened Porch
- Descripción de la vista: Ninguno
Otra información de la propiedad
- Número de parcela: 20-50-13-017-0160
- Adjunto a otra estructura: No
Construcción
Tipo y estilo
- Tipo de hogar: Pool Only
Información del material
- Construcción: Construcción de bloques de concreto
Condición
- Año de construcción: 1994
Comunidad y vecindario
Ubicación
- Región: Pinecrest
HOA y financiamiento
HOA
- Tiene HOA: No
- Cuota de HOA: N/A
- Servicios incluidos: None
Otra información financiera
- Compensación de la agencia del comprador: N/A
Propiedades cercanas
3.199.000 US$
5 habitaciones, 4.5 baños, área de 5548 sqft
Casa tipo Single Family en 134th DR, Pinecrest FL
Cod. Postal 33156

3.199.000 US$
5 habitaciones, 4.5 baños, área de 5548 sqft
Casa tipo Single Family en 134th Dr, Pinecrest FL
Cod. Postal 33156
3.699.000 US$
5 habitaciones, 4 baños, área de 5552 sqft
Casa tipo Single Family en 134th Dr, Pinecrest FL
Cod. Postal 33156
4.300.000 US$
5 habitaciones, 4 baños, área de 5552 sqft
Casa tipo Single Family en 134th Dr, Pinecrest FL
Cod. Postal 33156
4.595.000 US$
5 habitaciones, 5.5 baños, área de 6816 sqft
Casa tipo Single Family en 132nd St, Pinecrest FL
Cod. Postal 33156

2.499.700 US$
5 habitaciones, 4 baños,
Casa tipo Single Family en 68 Ct, Pinecrest FL
Cod. Postal 33156.0
La información de IDX se proporciona exclusivamente para uso personal y no comercial, y no se puede utilizar para ningún otro propósito que no sea identificar propiedades potenciales que los consumidores puedan estar interesados en comprar. La información se considera confiable pero no está garantizada. La oferta de compensación del corredor de la lista se realiza solo a los participantes de la MLS donde se archiva la lista.
Invierte en Miami
Déjanos tus datos y recibe asesoría personalizada de cómo invertir en Miami

































































