3505 S Ocean Dr # 905, Hollywood FL 33019, Hollywood, 33019. MLS #A11543582
Property details
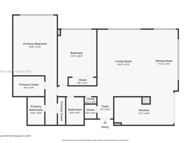
Coastline Of Hollywood Beach-Oceanfront Building- Large Corner Unit 1,376 Sf, Private Beach, Pool-Beach Attendant, And Direct Beach Access From The Pool Area. The Apartment Is Fully Furnished. Lots Of Natural Sunlight From The Large Windows Throughout The Condo. Balcony With Beautiful Intercostal Views Of The Bay And The Ocean. The Master Bedroom Has A King-Size Bed, A Suite Bathroom With A Powder Room, A Walk-In Closet. 2 Free Parking Spaces Plus Valet Parking Is Available 24/7 Building Doorman/Security-24/7. Hollywood Beach Area In Oceanside Building W/Direct Beach Access From The Pool Area. It Is A Perfect Destination For A Family Vacation. With Sun, Sand, Art, Great Food, And Dining, Wi-Fi Is Included
Property Details
Community Details
Mortgage Calculator
This is essential for your financial education and planning the purchase of your own home, allowing you to better manage your credit history and savings.
IDX information is provided exclusively for personal, non-commercial use, and may not be used for any purpose other than to identify prospective properties consumers may be interested in purchasing. Information is deemed reliable but not guaranteed. The listing broker's offer of compensation is made only to participants of the MLS where the listing is filed.































